Description
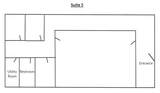
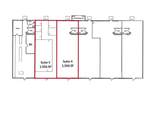
Great retail location facing Williams Blvd. Traffic count exceeds 12,500 cars per day. UPS Store, Edward Jones, KW Realty, Happy Joe's Pizza, Taco Bell, Dupaco Credit Union and SS Administration are neighbors. Tenants may set operating hours. Listing agents are partial owners. 2025 CAM estimate is $6.61/SF. Rate is first-year incentive. Second year would be $11.95/SF; third year to be $12.95/SF NNN. Zoning was C-3A in former zoning code. Attachments include: Feature Sheet, Aerial and Main Floor Plan.
-
0BEDS
-
1.27ACRES
-
0BATHS
-
01/2 BATHS
-
9,424SQFT
-
$0$/SQFT
School Ratings & Info
Description
Great retail location facing Williams Blvd. Traffic count exceeds 12,500 cars per day. UPS Store, Edward Jones, KW Realty, Happy Joe's Pizza, Taco Bell, Dupaco Credit Union and SS Administration are neighbors. Tenants may set operating hours. Listing agents are partial owners. 2025 CAM estimate is $6.61/SF. Rate is first-year incentive. Second year would be $11.95/SF; third year to be $12.95/SF NNN. Zoning was C-3A in former zoning code. Attachments include: Feature Sheet, Aerial and Main Floor Plan.
