Description
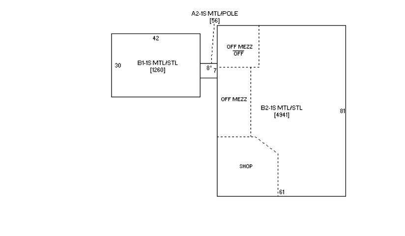
PRICED FOR IMMEDIATE SALE! - Multi-purpose buildings zoned for commercial/industrial use. Building 1 consists of 4,941 Sq. Ft. of concrete floor space with a 3-Ton Crane that will remain in place and has a pit for working underneath vehicles, pit was filled but could be re-established. Sections of the floor space for this area has been used for a small office, bathroom, manufacturing, fab-shop work and paint booth. Building 1 also includes an additional 936 Sq. Ft. of remodeled Office Space on the mezzanine level. Building 2 consists of 1,260 Sq. Ft. of floor space that can be used as a shop or other uses. Buildings 1 & 2 are heated, have numerous overhead and passage doors and are connected. Building 3 is 2,816 Sq. Ft. of storage space. There is an additional concrete foundation that could be utilized for the placement of another building.
-
0BEDS
-
0.37ACRES
-
0BATHS
-
01/2 BATHS
-
9,953SQFT
-
$0$/SQFT
School Ratings & Info
Description
PRICED FOR IMMEDIATE SALE! - Multi-purpose buildings zoned for commercial/industrial use. Building 1 consists of 4,941 Sq. Ft. of concrete floor space with a 3-Ton Crane that will remain in place and has a pit for working underneath vehicles, pit was filled but could be re-established. Sections of the floor space for this area has been used for a small office, bathroom, manufacturing, fab-shop work and paint booth. Building 1 also includes an additional 936 Sq. Ft. of remodeled Office Space on the mezzanine level. Building 2 consists of 1,260 Sq. Ft. of floor space that can be used as a shop or other uses. Buildings 1 & 2 are heated, have numerous overhead and passage doors and are connected. Building 3 is 2,816 Sq. Ft. of storage space. There is an additional concrete foundation that could be utilized for the placement of another building.
