Description
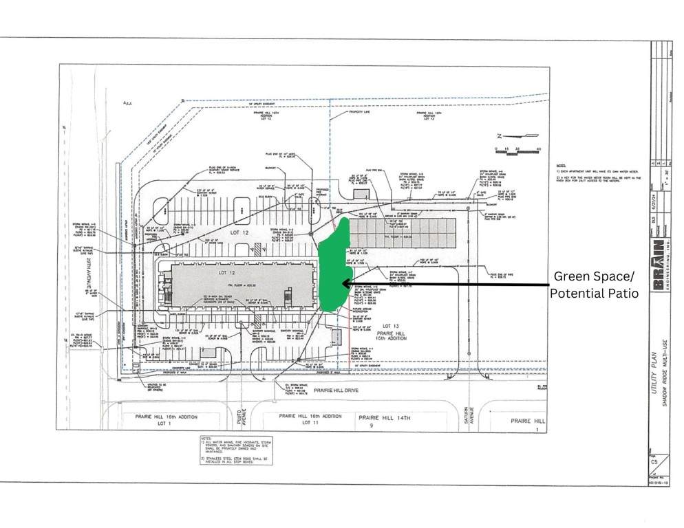
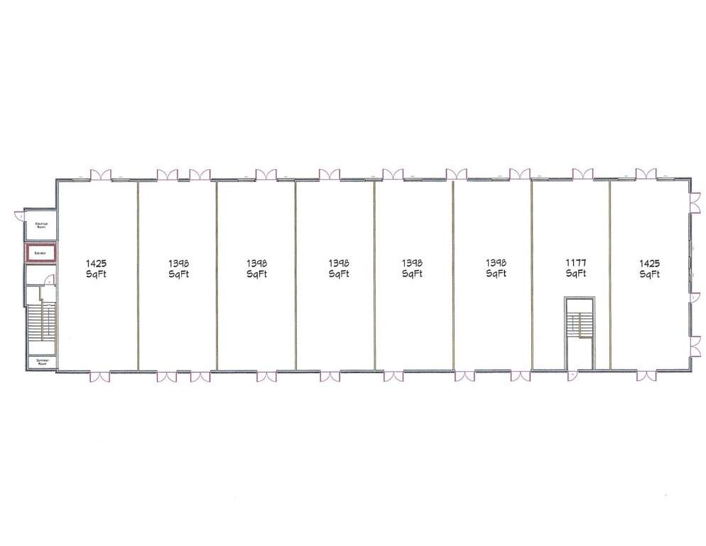
Shadow Ridge Multiuse, a modern mixed-use building, is set to open in Marion, Iowa, in 2025. Offering flexible retail, office, and restaurant suites ranging from 1,177 square feet up to a full-floor option of 11,387 square feet, this property is designed to meet a variety of business needs. Located in the heart of Marion, a fast-growing community in Eastern Iowa, Shadow Ridge Multiuse combines contemporary design with convenient amenities, including ample parking, high visibility, and customizable layouts. Positioned to become a central hub in Marion's commercial landscape, Shadow Ridge Multiuse presents an ideal opportunity for businesses seeking a prime location.
-
0BEDS
-
2.45ACRES
-
0BATHS
-
01/2 BATHS
-
36,000SQFT
-
$0$/SQFT
School Ratings & Info
Description
Shadow Ridge Multiuse, a modern mixed-use building, is set to open in Marion, Iowa, in 2025. Offering flexible retail, office, and restaurant suites ranging from 1,177 square feet up to a full-floor option of 11,387 square feet, this property is designed to meet a variety of business needs. Located in the heart of Marion, a fast-growing community in Eastern Iowa, Shadow Ridge Multiuse combines contemporary design with convenient amenities, including ample parking, high visibility, and customizable layouts. Positioned to become a central hub in Marion's commercial landscape, Shadow Ridge Multiuse presents an ideal opportunity for businesses seeking a prime location.
